KATEGORİLER
KATEGORİLER
REFERANSLAR

PROJELER

BATMAN MOR KURYAK...

PROJELER / BATMAN MOR KURYAK...

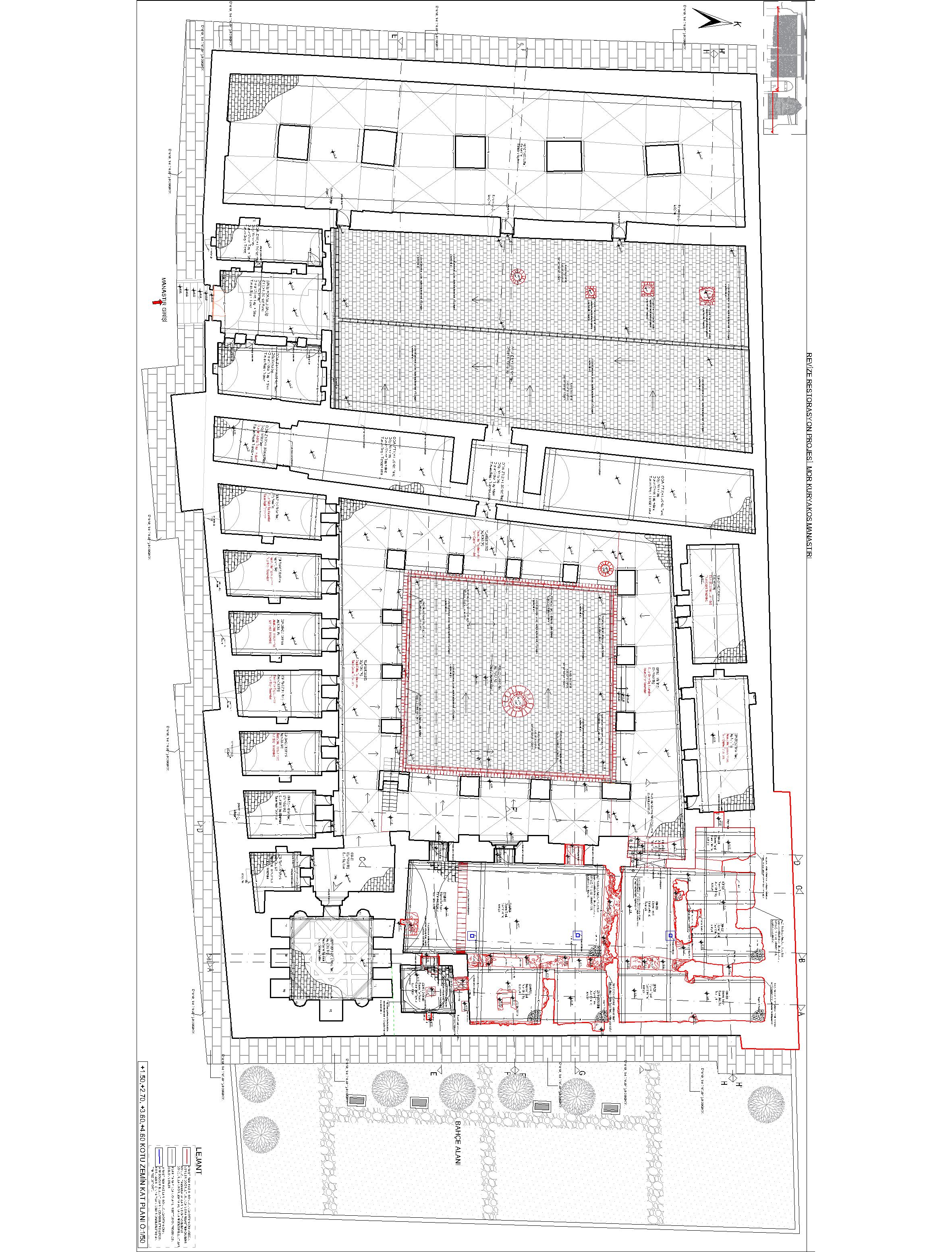
    Manastır sınırları içerisinde yapılan araştırma kazıları sırasında kilise duvarlarına ulaşılmış ve bu veriler doğrultusunda duvar izlerini takip ederek kilise alanını çözümledik. Bu doğrultuda gerçekleştirdiğimiz rölöve projeleri yaptığımız araştırmalar ile restitüsyon projelerimiz için kaynak görevi gördü. Orta kısımda apsis ve iki yanda apsisten geçiş sağlayan iki hazırlık odası ile apsisin hemen önünde Naos alanı bulunmakta olup, bu plan şeması Mor Gabriel Manastırı’ndaki büyük kilise ile uyum göstermektedir. Bu bulgular ışığında, restitüsyon ve restorasyon projelerini hazırlamış bulunmaktayız. Süryani Hristiyanları, monofizit anlayışları doğrultusunda 3. yüzyıl ortalarından itibaren Turabdin Bölgesi'nde birçok manastır inşa etmişlerdir. Bu yapılar, bölgenin kültürel ve dini mirasının birer parçası olarak, kendilerine özgü bir yapı geleneği oluşturmuşlardır. Bugün pek çoğu harabe halinde olsa da, önemli bir kısmı ayakta kalmayı başarmıştır. Bu manastırlardan bazıları, dini ve ilmi eğitim-öğretim alanında önemli işlevler üstlenmiştir. Bunlar arasında, Mor Kuryakos Manastırı da yer almaktadır. Süryani Kadim Ortodoks Kilisesi Patrikhane Nizamnamesi'nde, eğitimin geliştirilmesiyle ilgili olarak 57. Maddede, ‘’Musul iline bağlı Şeyh Matta adıyla bilinen, dönemin Diyarbekir İli Beşiri ilçesine bağlı Mor Kuryakos ve Midyat ilçesi sınırları dâhilinde bulunan Mor Gabriel adında ki Manastırlarda da birer şubesi ruhbanlar a birer şubesi de çocuklara ait ilkokul düzeyinde, yeni usulda eğitim ve öğretim programına uygun olarak düzenlenmenize yardımcı olunacaktır.’’ ifadesi yer almaktadır. Bu açıklama, Mor Kuryakos Manastırı’nın dini ve ilmi eğitimdeki önemli rolünü vurgulamaktadır. Ayrıca, Mor Kuryakos Manastırı'nın önemli bir kütüphaneye sahip olduğu ve uzun yıllar bölgenin Metropolit merkezi olarak işlev gördüğü tarihsel kaynaklarda yer almaktadır. Yapının tapu kayıtlarına göre 2340 m² alana sahip olduğu belirtilmektedir. Ancak, mevcut mekânların ötesinde, bazı mimari detaylardan (kemer ayak izi, tonoz izleri vb.) daha fazla mekânın varlığı anlaşılmaktadır. Doğu-batı ekseninde yer alan yapı, dikdörtgen planlı olup yaklaşık 76 x 39 metre ölçülerindedir ve iki katlıdır. Yan yana düzenlenmiş iki büyük avlu ve revaklı yapılardan oluşmaktadır. Manastırın planı, ilk inşasında belirlenen şemadan ziyade, ihtiyaçlar doğrultusunda ve çeşitli dönemlerde yapılan eklentilerle şekil almıştır. Bölgedeki diğer Süryani yapıları, Deyrulzafaran Manastırı ve Mor Gabriel Manastırları da benzer bir anlayışla inşa edilmiştir.